BLOGブログ
中古住宅を購入しての自然素材のリノベーションが、新潟市西蒲区で完成しました
中古住宅を購入し、1階部分のリフォームと
他にできるできないも含め色々相談したい!
とのことでナレッジライフ展示場にご来場くださった
お施主様の自然素材リノベが完成しました。
中古住宅を買ってリフォーム・リノベーションをするときに確認したいこと
①この住宅を買って自分たちの思い描くリノベーション・暮らしができるか
②間取りはどの程度変更できるか
①住宅ローンの借入はどうするか
②補助金の申請方法など
これらをまずは一旦整理することが大事。
お施主様と要望やご予算を確認し、ご提案させていただきました。
お二人のご要望は・・・
✓1階の6畳×2の和室をリビングダイニングにし床はヒノキの板貼りにしたい
✓壁は珪藻土の塗り壁に
✓キッチンもやっぱり入替えたいね
✓玄関の引戸をドアに、そして位置も変えて土間スペースを設けたい
✓ユニットバスをくつろげる浴室に変えたい
✓洗面も入替えたい
✓トイレの位置を変えたい
✓窓リノベの補助金で内窓サッシを入れたい
外観はそのままで、
中に入ると以前とは全くイメージが変わり
素敵なお二人らしいリノベーションが完成いたしました。
ビフォーアフターを間取りと写真で紹介
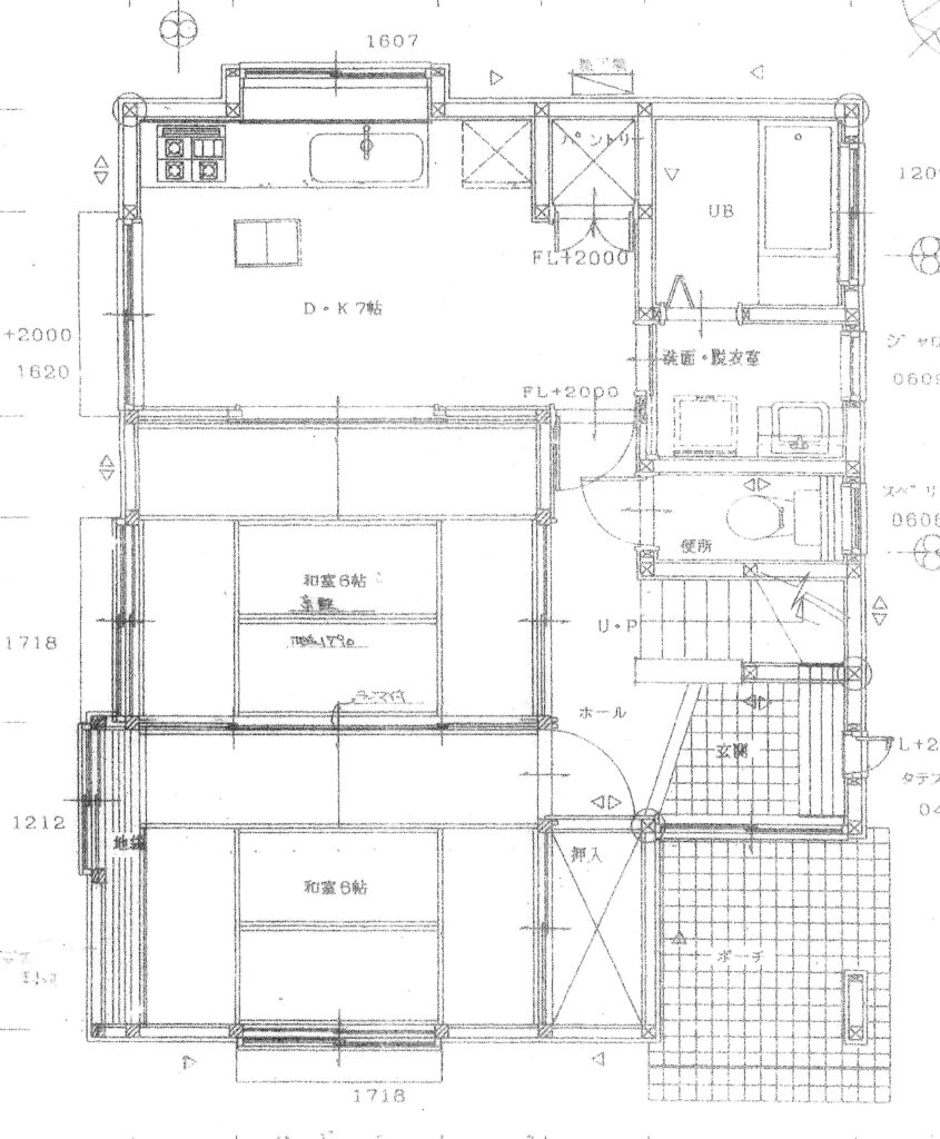
・Before

・After

まずは、主室となる部分。
続き間だった和室を16畳のLDKに。



ユニットバスはハーフユニットに入替え、壁にヒバを貼りました。


脱衣室はレイアウトを変え、既製の洗面化粧台を木質感の温かみのある化粧台に。


トイレは便器を再利用しつつ、配置を変えてご主人のリクエストの間接照明を。


玄関は土間スペースをぐんと広げて、可変的な使い方ができるように。



こんな感じにリノベーション工事が完了しました。
以前の”中古住宅”といった面影はなく、
無垢の床や珪藻土の塗り壁で仕上げた自然素材の良さを全面に感じられる空間に。
ご夫婦の想いがカタチになりました。
ここからさらにDIYでご夫婦らしい「器」に仕上げていくことと思います。
ナレッジライフは木の家専門店として新築もそうですが、自然素材を使ったリノベーションでお客様に「暮らしを楽しむ」ご提案ができたら嬉しいです!
まずはお気軽に展示場に遊びにいらしてください。

