お電話でのお問い合わせ

0120-878-415

LINE UPラインナップ

  1. ホーム
  2. ラインナップ
  3. pure

永く住み継いでいける
簡素でいて豊かな
Pure(ピュア)の木の家

SOLABLEライフ
「Pure(ピュア)」の家の大きな特徴は
工法・間取り・素材・デザインの
建築的工夫をバランスよく施すこと。

太陽の光と熱、風の力などの自然エネルギーを
上手に利用することで 長寿命な住宅、
健康、省エネ、環境に配慮します。

 また、こうした住まいづくりは、
環境にやさしい建材を選んでいることや
永く住み継げることを通して、
SDGs(持続可能な開発目標)の実現に
貢献できるサスティナビリティな家。

”人と街と地球にやさしい家づくり”
というSOLABLEライフのコンセプトを
体現するのが「Pure(ピュア)」の家です。

健康と環境にやさしい
国産材にこだわった「素材」

私たちは新潟県内でもいち早く自然の素材で家をつくりたいと考え、今に至っています。自然素材をつかうのは、なんと言っても住む人にやさしい素材だから。そして最後には土に還ることができて、環境負荷を減らすことができるから。

面積を有効活用し、
家族のつながりを深める「広がり間取り」

「広がり間取り」は日常的な家族のコミュニケーションを大切にすることに重点を置きつつも、この設計手法により 1 階と 2 階の構造の整合性を考えた強い構造となり、日照・風通しも積極的に取り入れた設計手法です。さらに、廊下や無駄な動線を減らし「全体の面積は小さくつくっても広く住まえる家」になるのです。

愛着を育む上質でシンプルな「デザイン」

家のデザインにも流行があります。建てる時は格好よく見えていても、時間がたつと何となく流行遅れに感じてしまうデザインも少なくありません。また、住まい手もいずれは歳を重ねていきます。SOLABLEライフPureの家では、末永く気持ちよく過ごしていけるような空間づくりを提案します。

- image photo

>スライドでご覧ください

SOLABLEライフ「pure」でつくる
小さな家・ひとりふたりの家

時代の変化と共に少しずつ変わっていく私たちの価値観。家づくりにおいては、”小さな家”への考え方がポジティブに。昨今の物価高騰やライフスタイルの多様化を受け、広い家=良い家小さな家=狭い家とは一概に言えないことにも、多くの方が気付き始めています。

ここではSOLABLEライフの小さな家の事例を5つご紹介。

自由設計で自分サイズの小さな家を私たちSOLABLEライフとつくりましょう。これまでの経験を生かしたお手伝いをさせていただきます。

■小さな家:事例〈22.7坪〉

延床面積約23坪とコンパクトな中にも、心地よい居場所を確保。

インナーバルコニーや多くの収納等、限られた面積の中で考え抜かれた全く無駄のない空間構成になっています。

建築データ

建築面積
37.59㎡(11.37坪)
延床面積(1階+2階)
75.18㎡(22.74坪)
規模
地上2階建

■小さな家:事例〈29.3坪〉

1階にリビングダイニングと水回り、2階に居室を3つ設け、家族が無理なく暮らすことのできる広さ。

勾配天井の吹抜けの開放感で、約29坪の延床面積以上の広がりを感じます。

建築データ

建築面積
66.92㎡(20.25坪)
延床面積(1階+2階)
96.93㎡(29.32坪)
規模
地上2階建

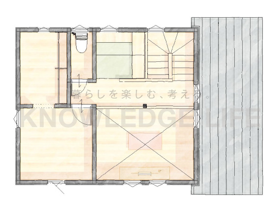
■小さな家:事例〈19坪〉

延床面積19坪、総2階の小さな家。

吹き抜けや畳コーナー、大容量のWICなど、小さい中にも暮らしを快適に楽しめる要素が詰まっています。

建築データ

建築面積
44.71 ㎡(13.52坪)
延床面積(1階+2階)
62.93㎡(19.04坪)
規模
地上2階建

■小さな家:事例〈25坪〉

2階建てですが、普段の生活は1階で完結できる「半平屋」のような住まい。

新潟らしい景色を求めて辿り着いた場所で、ゆったりとした豊かな時間を過ごせる終の棲家です。

建築データ

建築面積
79.49㎡(24.05坪)
延床面積(1階+2階)
82.80㎡(25.05坪)
規模
地上2階建

■小さな家:事例〈29.7坪〉

「終の棲家」としての平屋の住まい。

リビングと一体に広く寛げる和室は建具を閉め切ればゲストルームとしても使えます。大人数が集まるときにも対応できる間取りです。

建築データ

建築面積
103.51 ㎡(31.31坪)
延床面積(1階+2階)
98.33㎡(29.68坪)
規模
地上1階建(平屋)

お問い合わせ モデルハウス予約